Entrepot-atelier (instroumentalka)



Vestiges


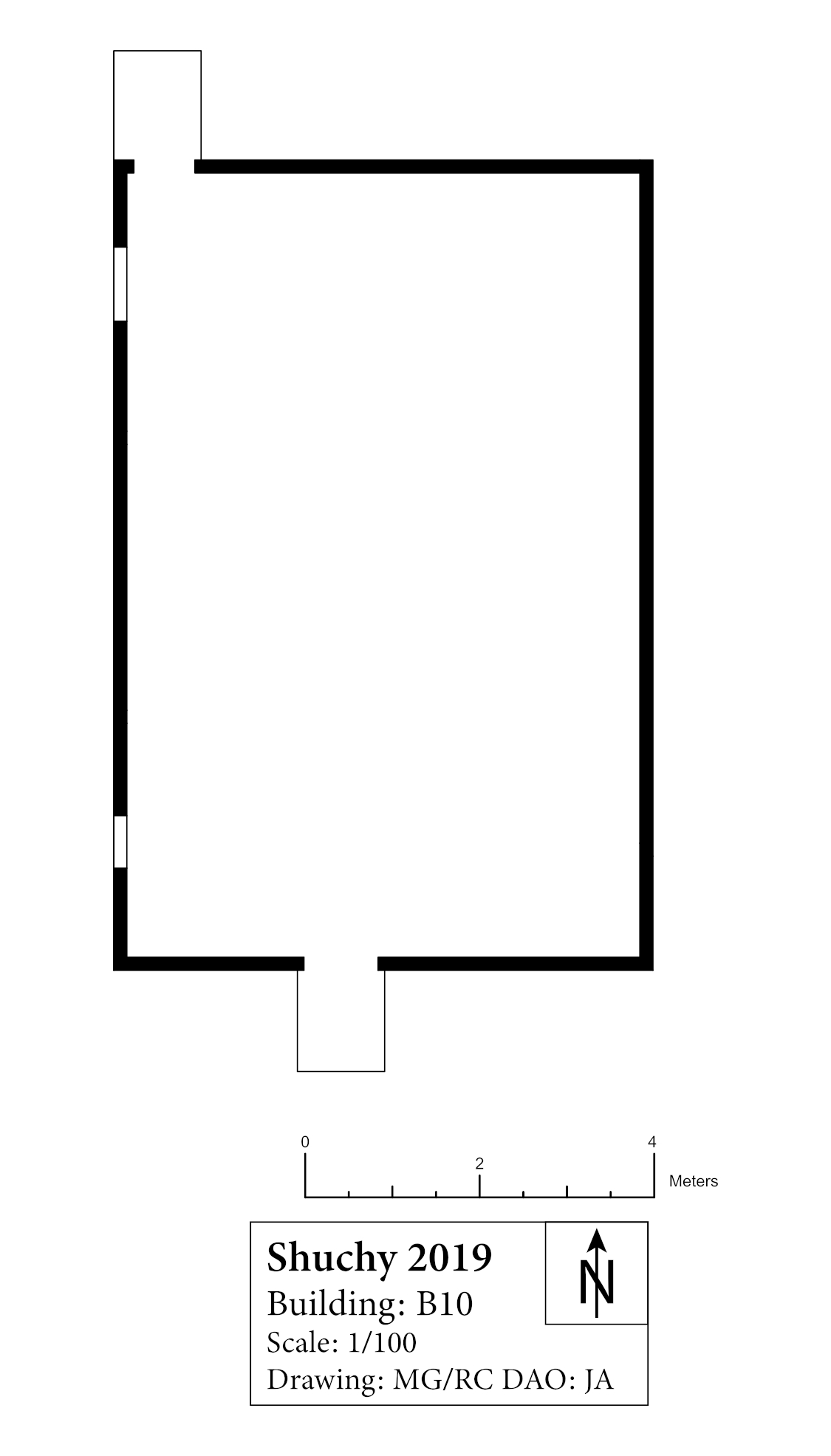
Plan de l'entrepôt/atelier

En dehors de la zone, à proximité du portail, se trouve un entrepôt. C’est là que les outils de travail nécessaires à la construction de la voie sont fournis et entreposés : pics, pelles, leviers, pieds-de-biche, haches, scies, brouettes, masses, etc. Une forge sert à réparer les outils endommagés. L’ouvrier chargé de ce travail est lui aussi un zek. Actuellement, le bâtiment est en grande partie effondré ; seul un pan de paroi empêche le toit de s’affaisser totalement.




1 / 5
L’entrepôt, à moitié effondré
2 / 5
L’entrepôt, à moitié effondré
3 / 5
L’entrepôt, à moitié effondré
4 / 5
L’intérieur du bâtiment n’est plus accessible, seul une paroi empêche le toit de s’affaisser
5 / 5
Pelle retrouvée au sol à proximité de l’entrepôt